本系列減壓閥屬于先導活塞式減壓閥。由主閥和導閥兩部分組成。主閥主要由閥座、主閥盤、活塞、彈簧等零件組成。導閥主要由閥座、閥瓣、膜片、彈簧、調節彈簧等零件組成。本產品在普通減壓閥基礎上作了很大改進,加大了活塞面積,改變了節流結構。改變了密封形式,加大了過流面積等等,從而在提高靈敏度、流量、壽命等方面大大改善了性能。
本產品主要用于蒸汽管路,適用于流量大流量變化大,進口壓力變化大的蒸汽管路。 |
主要技術參數和性能指標:
|
公稱壓力(Mpa)
|
1.6
|
2.5
|
4.0
|
6.4
|
10.0
|
16.0
|
|
殼體試驗壓力(Mpa)*
|
2.4
|
3.75
|
6.0
|
9.6
|
15.0
|
24
|
|
密封試驗壓力(Mpa)
|
1.6
|
2.5
|
4.0
|
6.4
|
10.0
|
16.0
|
|
最高進口壓力(Mpa)
|
1.6
|
2.5
|
4.0
|
6.4
|
10.0
|
16.0
|
|
出口壓力范圍(Mpa)
|
0.04-1.0
|
0.05-1.6
|
0.08-2.5
|
0.2-3.5
|
0.5-3.5
|
0.5-4.5
|
|
壓力特性偏差(Mpa)△P2P
|
GB12246-1989
|
|
流量特性偏差(Mpa)P2G
|
GB12246-1989
|
|
最小壓差(Mpa)
|
0.07
|
0.1
|
0.15
|
0.4
|
0.5
|
0.8
|
|
滲漏量
|
GB12245-1989
|
*:殼體試驗不包括膜片、頂蓋 |
主要零件材料:
|
零件名稱
|
零件材料
|
|
閥體 閥蓋 底蓋
|
WCB
|
|
閥座 閥瓣
|
2Cr13
|
|
缸套 活塞
|
鋁鐵青銅
|
|
膜片
|
1Cr18Ni9
|
|
活塞環
|
合金鑄鐵/對位聚苯
|
|
導閥座 導閥桿
|
2Cr13
|
|
主閥彈簧
|
50CrVA
|
|
導閥主彈簧
|
50CrVA
|
|
調節彈簧
|
60Si2Mn
|
|
流量系數(Cv):
|
DN
|
50
|
65
|
80
|
100
|
125
|
150
|
200
|
250
|
300
|
350
|
400
|
500
|
|
Cv
|
1
|
2.5
|
4
|
6.5
|
9
|
16
|
25
|
36
|
64
|
100
|
140
|
250
|
|
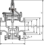
外形尺寸(PN1.6-4.0): 單位:mm
|
公稱通徑DN
|
外 形 尺 寸
|
|
L
|
H
|
Hl
|
|
1.6/2.5MPa
|
4.0MPa
|
|
15
|
160
|
180
|
265
|
85
|
|
20
|
160
|
180
|
265
|
85
|
|
25
|
180
|
200
|
280
|
95
|
|
32
|
200
|
220
|
280
|
95
|
|
40
|
220
|
240
|
290
|
105
|
|
50
|
250
|
270
|
300
|
130
|
|
65
|
280
|
300
|
315
|
145
|
|
80
|
310
|
330
|
330
|
170
|
|
100
|
350
|
380
|
405
|
200
|
|
125
|
400
|
450
|
450
|
225
|
|
150
|
450
|
500
|
485
|
265
|
|
200
|
500
|
550
|
570
|
290
|
|
250
|
650
|
640
|
325
|
|
300
|
800
|
740
|
360
|
|
350
|
850
|
810
|
395
|
|
400
|
900
|
950
|
430
|
|
500
|
950
|
1080
|
500
|
|
外形尺寸(PN6.4-16.0): 單位:mm
|
公稱通徑DN
|
外 形 尺 寸
|
|
L
|
H
|
Hl
|
|
6.4MPa
|
10.0/16.0MPa
|
|
15
|
180
|
180
|
280
|
100
|
|
20
|
180
|
200
|
280
|
100
|
|
25
|
200
|
220
|
300
|
115
|
|
32
|
220
|
230
|
300
|
115
|
|
40
|
240
|
240
|
315
|
130
|
|
50
|
270
|
300
|
340
|
135
|
|
65
|
300
|
340
|
355
|
150
|
|
80
|
330
|
360
|
370
|
175
|
|
100
|
380
|
450
|
205
|
|
125
|
450
|
510
|
235
|
|
150
|
500
|
555
|
275
|
|
200
|
550
|
640
|
300
|
|
250
|
650
|
720
|
335
|
|
300
|
800
|
830
|
375
|
|
350
|
850
|
880
|
410
|
|
400
|
900
|
1020
|
445
|
|
500
|
950
|
|
1080
|
515
|
|
訂貨須知:
產品型號 公稱壓力 公稱通徑 連接法蘭標準 額定流量系數Cv 進口壓力 調節范圍 工作介質和介質溫度 |